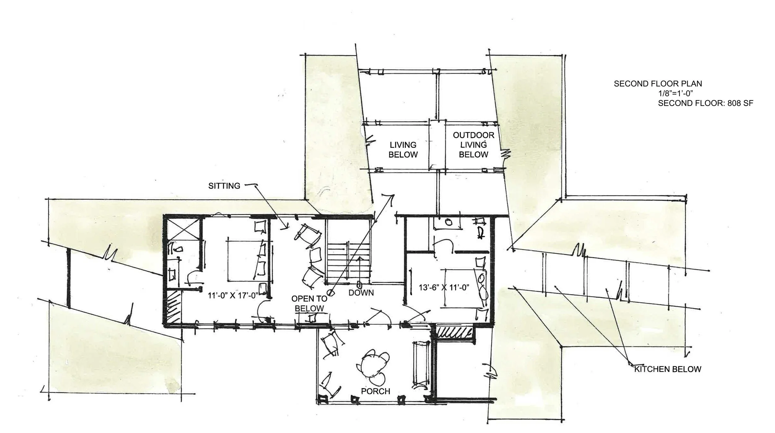
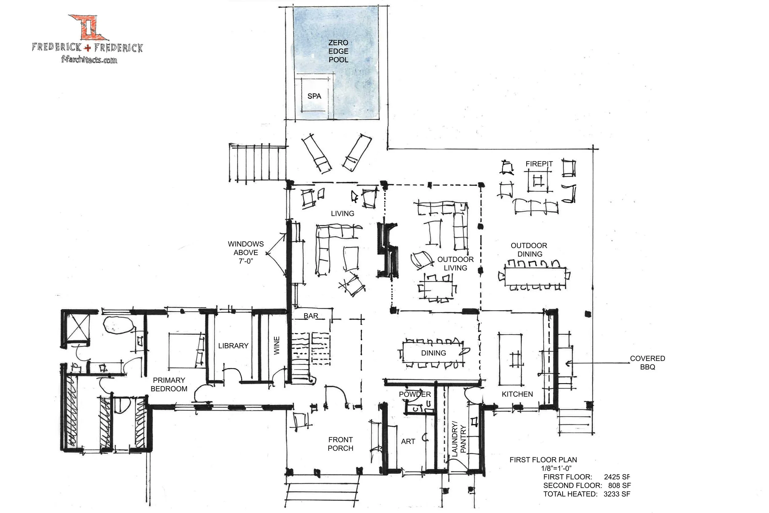
On the Boards: Pigeon Point House

 
 

We are thrilled with our latest design opportunity- the site is in Downtown Beaufort, a neighborhood called Pigeon Point. It is a lovely residential area, close to restaurants and shops, but still quiet and private. This lot is right on the Beaufort River, on a bluff with views to the North. Its a stunning view and the trees, specifically several large live oaks, are magnificent.

 
 

To begin the design process for a new house, we start by getting a survey of the trees and topography, then conduct an analysis of the site. How can the views be maximized? How can the prevailing breezes and the sun angles inform the most energy efficient design? How is the house sited so that there is a sense that it belongs with the trees?

While we study the site, we develop a program with the clients. We discuss the clients’ day-to-day, how the house can support their daily rhythms and enhance their connection to the land. We plan a vision for their future, while also tackling the nitty-gritty details.

 
 
Previous
Previous

Before & After: Davis Pond

Next
Next

Field Report, September